The Grand Prix
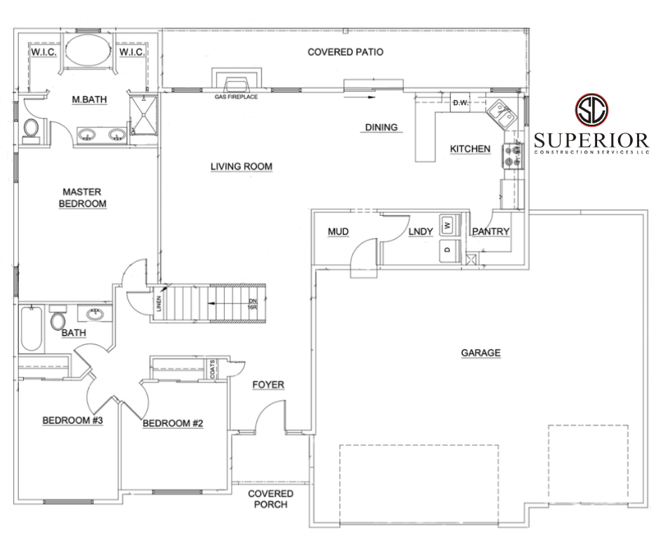
Beautifully crafted 3-bedroom, 2-bathroom home that boasts exceptional attention to detail and high-end finishes throughout. Designed for comfort and style, this home features an oversized 3-car garage with an impressive 30-foot depth, perfect for extra storage or a workshop. Step outside to enjoy the expansive 37-foot covered back patio, ideal for outdoor entertaining and relaxation. The striking exterior is enhanced by upgraded stucco accents, a hip roof, and elegant arched garage door openings, creating undeniable curb appeal. Inside, the open-concept floor plan is flooded with natural light, highlighting the vaulted ceilings that add to the spacious feel. A well-appointed pantry room offers extra storage,while the gas fireplace serves as a cozy focal point for the living area. This home truly blends style, function, and superior craftsmanship.
